Marc Härter Immobilien
Für Renovierung oder Neubau - Bevorzugte Lage in Oberursel
61140 Oberursel - Oberstedten
Kaufpreis
- 1250000
Die Immobilie
Zum Verkauf steht ein Einfamilienhaus aus dem Baujahr 1958 mit einer Wohnfläche von etwa 103 m², das insbesondere durch seine ruhige Lage überzeugt.
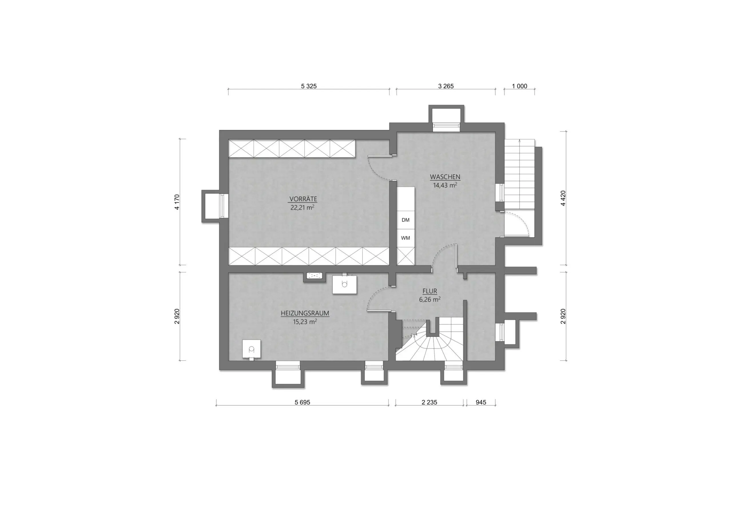
Im Erdgeschoss erwartet Sie ein kleiner Essbereich neben der Küche sowie ein großzügiger Wohnbereich mit abgetrenntem Esszimmer. Das Obergeschoss bietet drei Schlafzimmer und ein Badezimmer mit Badewanne, während der Spitzboden zusätzlichen Stauraum bereitstellt. Im Keller befinden sich die Waschküche, diverse Lagerräume und der Heizungskeller. Besonders attraktiv ist der direkte Zugang vom Wohnbereich auf die Terrasse, die zusammen mit dem ruhigen Grundstück zum Entspannen im Freien einlädt.
Zur Immobilie gehört zudem eine großzügige Einfahrt und eine Garage.
Die Immobilie befindet sich in einem sanierungsbedürftigen Zustand und bietet dadurch vielfältige Möglichkeiten für Käufer, die ein Renovierungs- oder Umbauprojekt suchen. Aufgrund der großzügigen Grundstücksgröße und der attraktiven, ruhigen Lage ist das Objekt auch für einen potenziellen Neubau interessant.
Öl-Zentralheizung (Fa. Wolf, Brenner Bj. 2001)
Warmwasserspeicher 150 Ltr. (Bj. 1982)
Überwiegend Wärmeschutzverglasung (Bj. 2013 + 2020)
Installationen aus dem Baujahr
Parkett, Fliesen und Linoleum als Bodenbeläge
Terrasse am Wohnbereich
Vollunterkellert
Garage
Bebaubar nach Bebauungsplan – WR II, GRZ 0,25, GFZ 0,4, Einzel- und Doppelhäuser zulässig
Bei einem erfolgreichen Abschluss des Kaufvertrags beträgt die Provision für den Käufer 3,57% inklusive Mehrwertsteuer, berechnet auf den Gesamtkaufpreis der Immobilie. Die Provision ist mit Abschluss verdient und fällig. Es liegt mit dem Verkäufer ein Maklervertrag und eine Provisionsvereinbarung in gleicher Höhe vor.
Alle Angaben sind ohne Gewähr und basieren auf Informationen, die uns von unserem Auftraggeber zur Verfügung gestellt wurden und auf eigenen Recherchen. Wir übernehmen keine Gewähr für die Vollständigkeit, Richtigkeit und Aktualität der Angaben.
Energieausweis | Bedarf | 392,7kWh | Klasse: H | Öl
Grundrisse
Marc Härter Immobilien begleitet Sie vom ersten Kontakt bis hin zum Kaufabschluss. Als junges und modernes Unternehmen in der Immobilienbranche haben wir uns auf die Vermittlung anspruchsvoller Wohnimmobilien und Kapitalanlagen in Frankfurt am Main und in Mittelhessen spezialisiert.
Sie haben Fragen oder möchten weitere Details zu unserem Immobilienangebot? Wir freuen uns auf Ihre Nachricht.
Die Lage
Die Immobilie im Stadtteil Oberstedten von Oberursel liegt in einem äußerst ruhigen Wohngebiet, das sich durch eine hohe Lebensqualität und eine starke Verbindung zur Natur auszeichnet. Diese Anliegerstraße ist ideal für Familien und alle, die eine entspannte und private Wohnumgebung bevorzugen, da sie vom Durchgangsverkehr weitgehend abgeschirmt ist. Trotz ihrer ruhigen Lage ist die Anbindung an Oberursels Stadtzentrum sowie an die umliegenden Wirtschafts- und Kulturzentren wie Frankfurt ausgezeichnet.
Oberstedten ist bekannt für sein grünes Umfeld und seine Nähe zu den beliebten Erholungsgebieten des Taunus, was Freizeit- und Sportmöglichkeiten im Freien, wie Wandern und Radfahren, praktisch vor der Haustür bietet. Gleichzeitig bietet der Stadtteil durch seine verkehrsgünstige Lage eine schnelle Erreichbarkeit der Autobahnen A661 und A5 sowie des öffentlichen Nahverkehrs in Richtung Frankfurt und Umgebung. Alle notwendigen Annehmlichkeiten wie Schulen, Kitas, Ärzten, Einkaufsmöglichkeiten und Restaurants befinden sich in unmittelbarer Umgebung, wodurch sich eine hohe Standortattraktivität für Familien und Berufstätige ergibt. Neben der Naturanbindung und den infrastrukturellen Vorteilen bietet die Region Oberursel eine reiche kulturelle und historische Tradition, die in der Altstadt mit ihren Fachwerkhäusern und jährlichen Veranstaltungen gepflegt wird.
Sie haben Fragen oder wünschen weitere Informationen?